

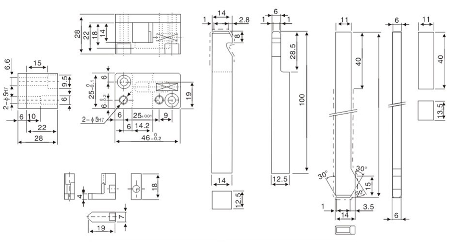
通過鈎形鎖銷, 插銷重復動作的結構, 使産品小型化
節省安裝空間。 也可用于退料板頂出 。
The structure of hooked Locking pin and repeated actions of
plug pin makes the product miniaturization so that it saves
installation space. It can also be used for ejection of stripper plate.

訂購:123-鎖模扣 PLSW